平和不動産が中心となって進められている、日本橋兜町・茅場町地区再活性化プロジェクトの中心を担う施設として建設されたオフィスビル「KABUTO ONE」のエントランスホールに、新しい兜町、さらには日本の金融の新たなシンボル、脈動するエネルギーの象徴としてThe HEARTの企画提案およびハードウェアのデザインを、NOIZが担当しました。
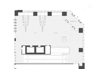
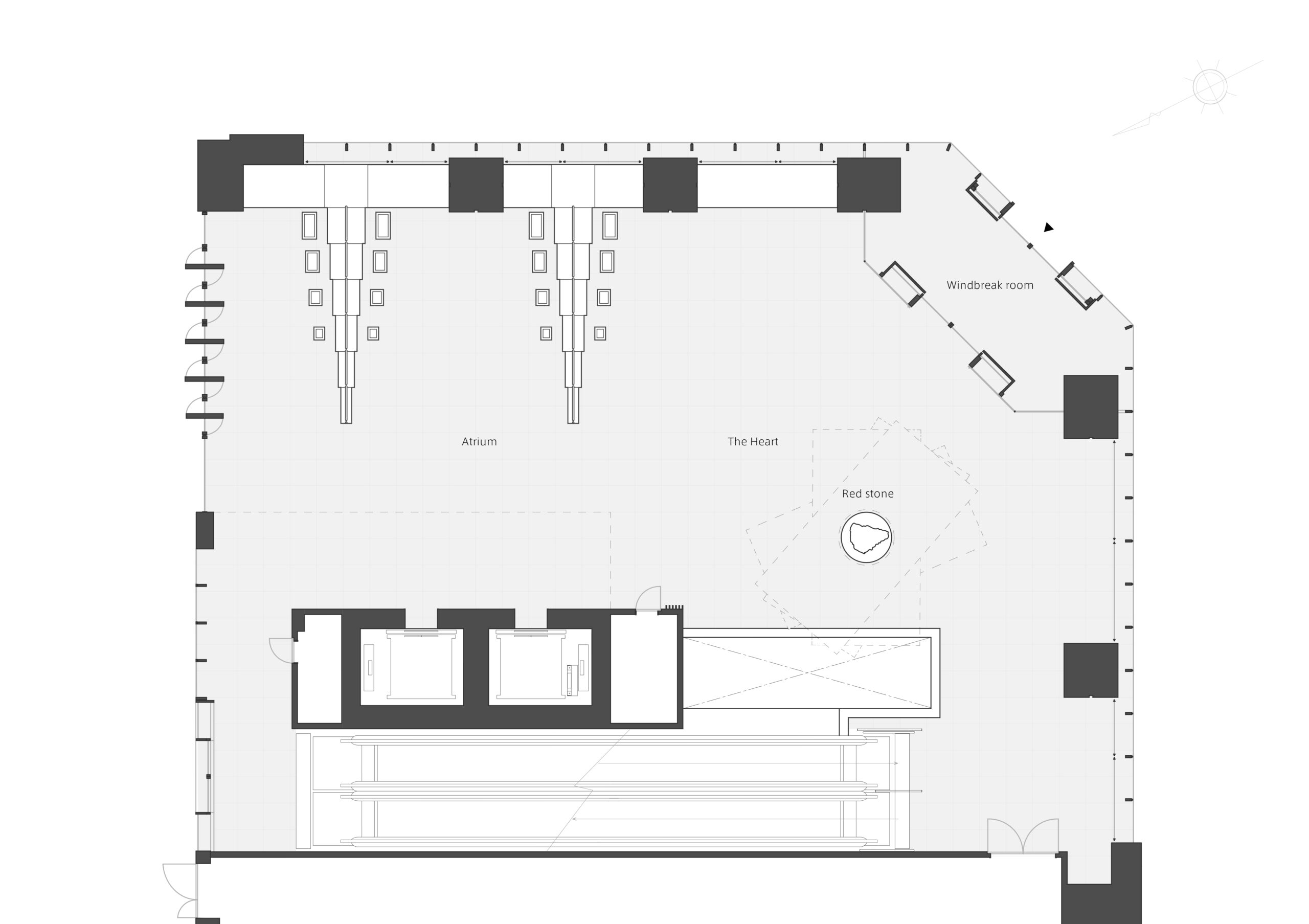
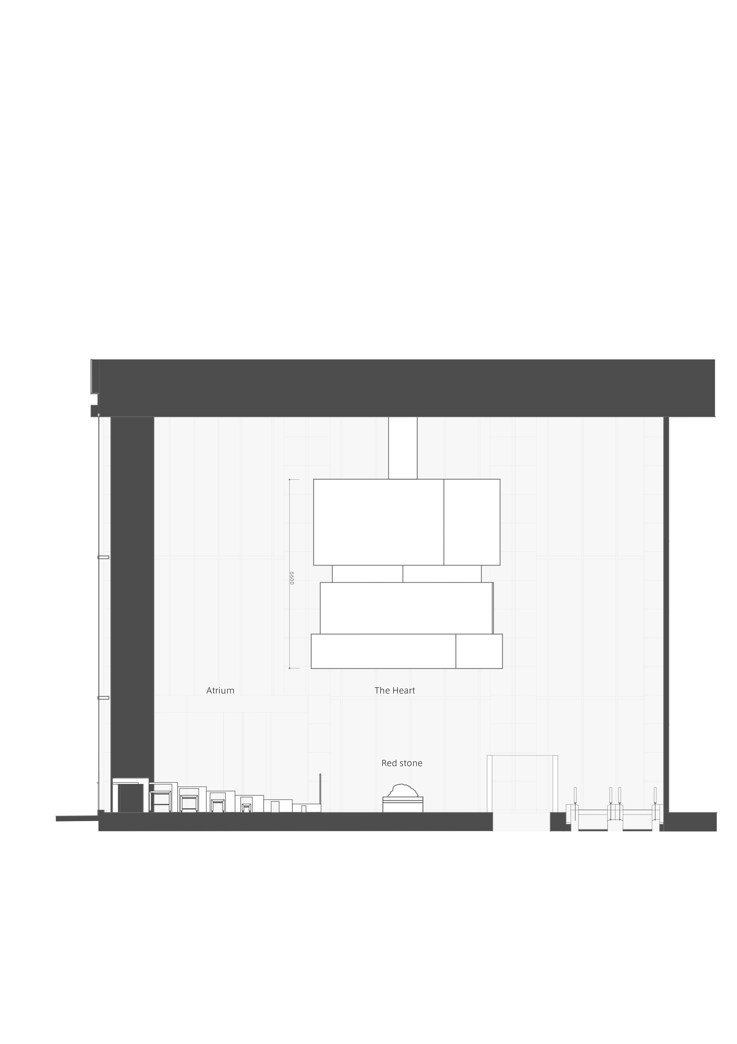
The HEARTは大きな吹き抜け空間の天井から吊られた、世界最大の可動式立体LEDディスプレイです。オフィスのエントランス空間に不釣り合いなほどの巨大なオブジェクトとしての存在感、不定期に静かに回転する動き、エントランスホール内部からはもとより、KABUTO ONEが面する永代通りや平成通りからガラス越しでも目立つ視認性など、従来の室内ディスプレイとは一線を画す、動的ディスプレイとして計画しています。
全体の構成や形態のデザイン、回転などに関する企画はNOIZが、コンテンツやディスプレイ、システムのデザインや実装はAbstract Engineが、実施設計と施工は乃村工藝社が担当をしています。
幅6m、奥行き3m、高さ5.5mの立体LEDディスプレイは、ランダムな幅で4つのボリュームに分割されていて、通常はすべてがそろった状態で、不定期に各段が回転する形で、株価のリアルタイムの状況や兜町の歴史、ニュースなどの情報ディスプレイとして機能します。固定されている時にはイベント用のディスプレイとしても機能し、近くの東京証券取引所での上場イベントのサテライト会場や記者発表など、映像と空間を一体化した多様なイベントにも対応可能です。株価の上昇や下落動向に応じてディスプレイの色が刻々と変化し、浮遊する巨大なボリュームが回転するという非日常的なスケール感とも相まって、あたかもSFの世界の一部のような、現実と非現実、情報と物質など、多様な世界を跨ぐような不思議な感覚を呼び起こします。
The Heartという名前は、ここからパルスのように脈動しながら発信される情報や動きが兜町全体、ひいては日本の経済や世界にまで伝わる、その中心であり続けるという意思の表明であり、経済の血液である金融を、常にここから動かし続けるという願いが込められています。
「The HEART」の回転軸の下には、日本金融界の父である渋沢栄一氏が大切にしていた縁起物の赤石を設置し、「KABUTO ONE」や兜町の歴史や理念の象徴として、来訪者が実際に触れられる形で設置されています。新しさだけでも、歴史や蓄積だけでもない、新しく開かれた兜町、日本金融界の象徴として、単独のビルのエントランスという機能を超えた、開かれた公共空間としての演出を、The HEARTは担っています。
The entrance hall of KABUTO ONE, an office building constructed as the central facility of the Nihonbashi Kabutocho / Kayabacho district revitalization project led by HEIWA REAL ESTATE CO., LTD. is designed NOIZ was in charge of planning, proposal, and hardware design for The HEART.
The HEART is the world’s largest movable three-dimensional LED display suspended from the ceiling of a large atrium space. Its presence as a huge object disproportionately large for an office entrance space, its irregular and silent rotation, and its conspicuous visibility not only from inside the entrance hall but also through glass from Eitai-dori and Heisei-dori, where KABUTO ONE faces, make it a clear departure from conventional indoor displays. It is planned as a dynamic display that is distinctively different.
NOIZ was in charge of planning the overall structure, form design, and rotation, Abstract Engine designed and implemented the content, displays, and systems, and Nomura CO., LTD.
The 3D LED display, 6m wide, 3m deep, and 5.5m high, is divided into four volumes of random width, and while all are normally aligned, each level rotates irregularly to display real-time stock prices, Kabuto-cho history, news, and other information. It serves as a display. When fixed, it also functions as an event display and can be used for a variety of events that integrate video and space, such as satellite venues for listing events at the nearby Tokyo Stock Exchange or press conferences. The colors of the display change from moment to moment in response to rising or falling stock prices, and when combined with the extraordinary scale of the rotating giant floating volume, it evokes a strange sensation of straddling diverse worlds, such as reality and unreality, information and matter, as if it were part of the world of science fiction.
The name “The HEART” is an expression of the desire to remain the center of the information and movement transmitted from here, pulsating like a pulse, to the entire Kabuto-cho area and eventually to the Japanese economy and the world, and to keep finance, the blood of the economy, moving from here.
Underneath the revolving axis of “The HEART” is a red stone, a lucky charm that was cherished by Eiichi Shibusawa, the father of Japanese finance, and is placed in a way that visitors can actually touch it as a symbol of KABUTO ONE and the history and philosophy of Kabuto-cho. The HEART is a symbol of the new Kabuto-cho and the Japanese financial world, not only for its newness, history, and accumulation, but also for its openness as a public space that transcends the function of a single building entrance.
Project Name
Information
Year
2021
Category
Design Category, Design Status, Art / Installation, Realized, Kinetic
Status
Built
Location
東京, 日本 Tokyo, Japan
Photo Credit
平和不動産株式会社 HEIWA REAL ESTATE CO.,LTD.
URL
Collaborator
コンテンツデザイン: アブストラクトエンジン
Contents Design: Abstract Engine Co., Ltd.
Awards & Recognitions
第56回日本サインデザイン賞「金賞」
International Design Excellence Awards 2022 environments部門 「銅賞」
デジタルサイネージアワード 2022「優秀賞」
Red Dot Design Award 2022 Interior Design & Architecture Digital Signage 「Red Dot受賞」
2021 年度グッドデザイン賞 「受賞」
56th Japan Sign Design Awards 「Gold Prize」
International Design Excellence Awards 2022 environments category 「BRONZE」
Digital Signage Award 2022 「Award of Excellence」
Red Dot Design Award 2022 Interior Design & Architecture Digital Signage 「Red Dot」
Good Design Awards 2021 「Winner」
View Detail