COMI-CHIKA SONY COMI-CHIKA Sony Atsugi

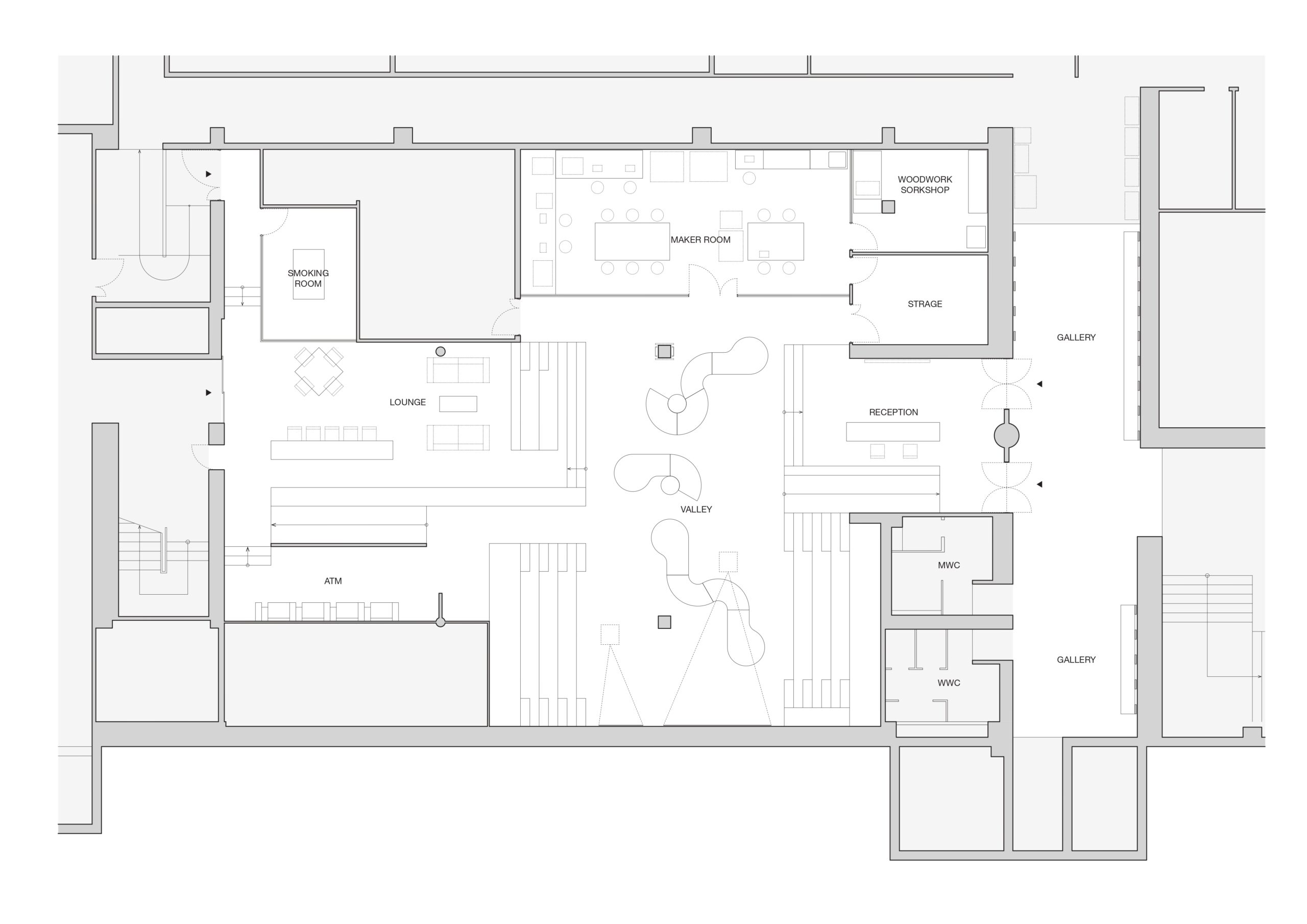
SONY厚木テクノロジーセンター内の社内用コワーキングスペースの計画。ソニーシティ大崎におけるBRIDGE TERMIAL同様、社内有志によって立ち上がったこのプロジェクトは、自由なものづくりと領域を超えた情報共有・交流のできる場を創出し、社員の創造性を引き出すことを目的とする。センター内の食堂が入る建物の地階に、ワークショップ、イベントを行うことができる多目的スペース、デジタルファブリケーション機器が利用できる工作室、試作品を展示するギャラリー、ラウンジなどを設ける。

 

既存の空間にあった約50cmの段差を積極的にいかして、中央に大階段が向かい合うオープンスペースをもうけ、この谷間のような地形に人々が自然に集まってくることを意図した。この地下に作られた微地形は天井高さの異なる多様な場所をつくりだし、利用者は自分だけの居場所を見つけて自由に作業したり、くつろいだりすることができる。大階段はイベント時には桟敷席となり、空間が小さな劇場へと一転する。

 

また天井面には利用者が自由にモノを吊り下げたり、配線を通したりする既製のケーブルラックをバーコード状に設置した。このケーブルラックはギャラリーにおいては壁面にも展開され、展示用の棚柱としての利用するなど、空間に可変性と拡張性を与えるインフラとなる。

 

既存コンクリート躯体と合板の質感や、既製品ラックを吊った天井など、つくりこみすぎない生のザラりとした触感を残すことで、ものづくりのスピリットを受け継ぐ会社の精神を表現し、粗削りでも可能性のあるアイデアを自由に進化させることができるクリエイティブな空間を目指した。

A plan for an in-house coworking space at the SONY Atsugi Technology Center. Like BRIDGE TERMIAL at Sony City Osaki, this project, initiated by in-house volunteers, aims to draw out the creativity of employees by creating a place where they can freely create products and share and exchange information beyond their own domain. On the basement floor of the building that houses the center’s cafeteria, there will be a multipurpose space for workshops and events, a workshop where digital fabrication equipment can be used, a gallery where prototypes can be displayed, and a lounge.

Project Name

COMI-CHIKA – SONY厚木工場コミュニティスペース COMI-CHIKA – Sony Atsugi

Information

  • Year

    2018

  • Category

    Design Category, Building Type, Design Status, Interior, Office / Labo., Realized

  • Status

    Built

  • Location

    神奈川, 日本 Kanagawa, Japan

  • Photo Credit

    高木康広 Yasuhiro Takagi

  • Collaborator

    施工: DESIGN ART CENTER Co.,Ltd

    Construction: DESIGN ART CENTER Co.,Ltd

View Detail