東京都内の住宅地に計画された、夫婦と子供2人のための住宅。
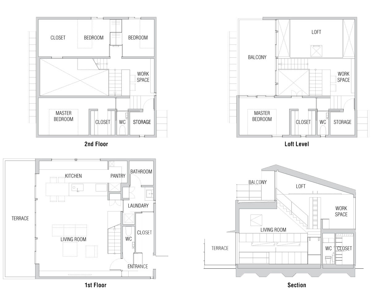
積み木のように組まれたボリュームを斜線制限の最大限の大きさの家形で切り取り、その残余としてのボックスとすき間によって構成される家である。素材や仕上げの異なる寝室や水回りのボックスを積み木状に重ね、その残りの部分をリビング・ワークスペース・屋根裏部屋が吹抜けでつながるパブリックスペースとしている。
リビングは寝室に開けられた窓から見れば外側になるが、掃き出し窓越しにつながる屋外デッキに対しては内側となるというように、空間の相対的な関係性が常に変化することによって、生活空間に面積以上の奥行きが感じられるようにしている。

このプロジェクトではUnreal engineによるリアルタイムレンダリングを設計段階で取り入れ、素材検討やクライアント打合せに活用した。またコンピューター上の空間を次元を落とした現実空間の写像として見るのではなく、現実に再現すべきものとして見ることで、従来とは異なる設計アプローチを試みている。
テクスチャマッピングされた厚みがないコンピューター上の表現は、角で素材が切り替わるディテール、クリアランスゼロで交わる端部処理によって追及され、結果として物質性が消失した浮遊感のある空間を作り出すことを可能にしている。バーチャルな表現を徹底することで、対比的に何気ない生活の風景や自然の移り変わりが浮かび上がる家にしたいと考えた。

Housing for a married couple and two children, planned in the residential area of Tokyo.
The Shape of the house was made from stacked blocks cut by setback regulation, which results in boxes and voids inside of the house. Bedrooms and wet areas were stacked as boxes with different materials and finishes, the remaining void was designed as public space with living room, workspace and attic space that connected to the stairwell. When the living room is seen from windows of bedrooms, it could be considered as exterior space. At the same time, it is interior space from decks connected by sliding windows. Through this continuous transition on the relationship between spaces, living space was intended to have further depth than its actual size.
In this project, real-time rendering with Unreal Engine was applied on design steps, especially on material reviews and client meetings. Also, space created on the computer was dealt with as what should be reproduced in reality, not as degraded mapping of real space. With switching materials on corners, and with edge handling that lines cross with zero clearance, expression on computer space was pursued which is texture-mapped and have no thickness. This resulted space with floating feelings, disappear on materiality. By radical pursue on virtual expression, the house was attempted to have emerging scenery of casual life and change in nature contrastively.

Project Name

等々力の住宅 HOUSE IN TODOROKI

Information

  • Year

    2018

  • Category

    Design Category, Building Type, Design Status, Architecture, Residencial, Realized

  • Status

    Built

  • Location

    東京, 日本 Tokyo, Japan

  • Photo Credit

    高木康広 Yasuhiro Takagi

  • Collaborator

    構造: 坪井宏嗣構造設計事務所 / 施工: 桃山建設 / 家具: Vitra

    Structural Design: Hirotsugu Tsuboi Structural Engineering Company Inc. / Construction: MOMOYAMA Construction Co., Ltd. / Furniture: VITRA INTERNATIONAL AG.

View Detail