高輪ゲートウェイシティ「ニュウマン高輪」1階にオープンした「POSTUDIO」(ポスタジオ)は日本郵政グループが提供する、テーマ型コンテンツを核とした体験スペースおよびカフェの計画です。

 

全国に拠点を持つ日本郵政グループのネットワークは、各地に実在する物理的な拠点を通じ、モノや情報をつなぐ基盤として機能してきました。POSTUDIOではその特性に着目し、日本各地の知られざる地域の魅力を発掘・発信するとともに、利用者がそれらをより能動的に体験できる場を計画しました。

 

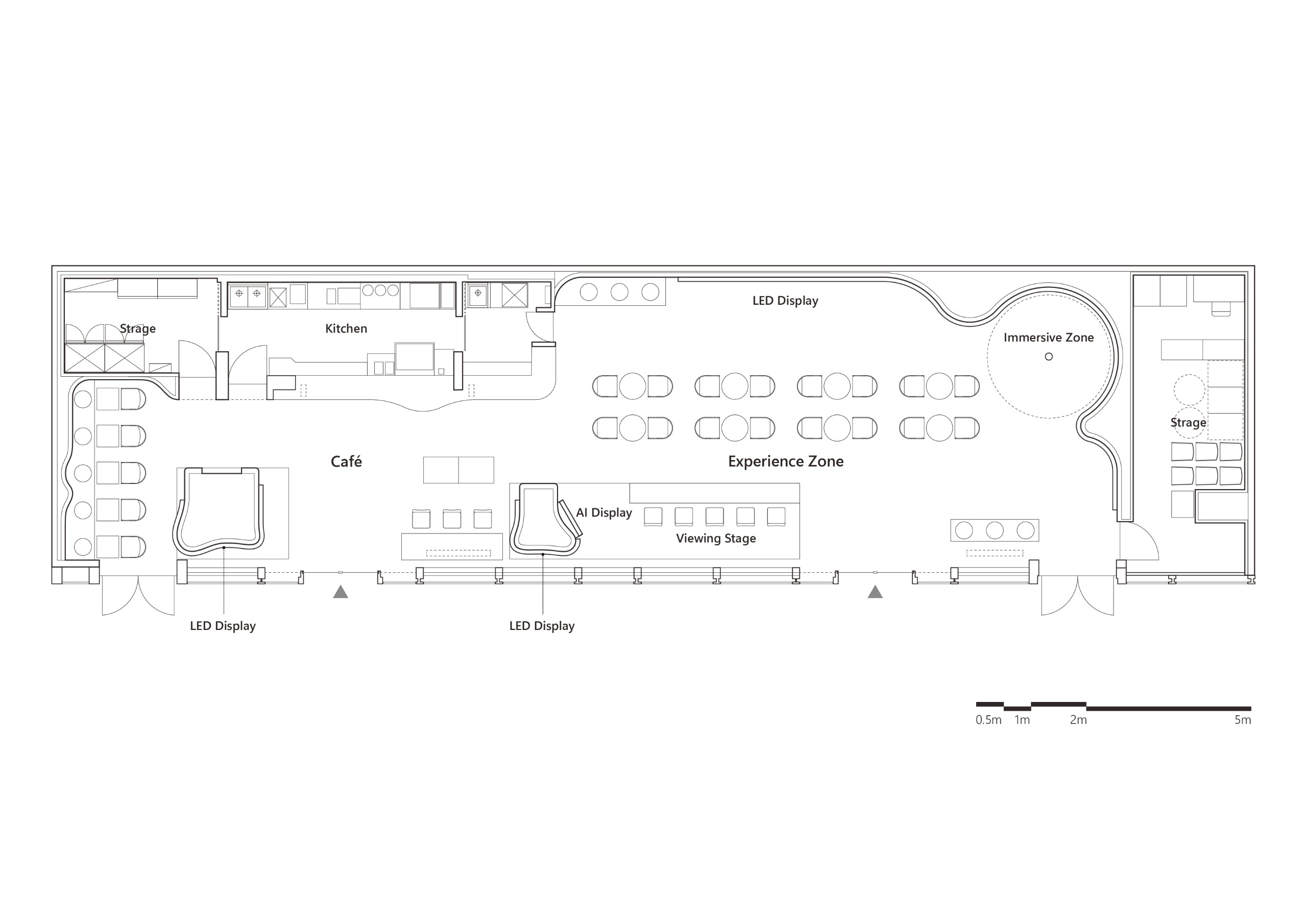
ここでは直線的な要素を空間の基調としつつ、壁面や大型LEDディスプレイといった垂直面の一部を波のようにうねる曲面とすることで、コントラストをつくり出しています。垂直面のゆらぎがカフェエリアと体験スペースという用途の異なるプログラムを緩やかにつなぎこみ、場所と場所、人と人、時間と記憶を橋渡しするこの場所のもつメディア性を空間的に表現しました。

 

体験スペースに据えられた大型のLEDディスプレイは、通常のスケール感を超え横方向に長く伸びており、こちら側と向こう側が交わる越境面となっています。その面は遠く離れた各地の風景や生活の営みを投影する「窓」として機能するだけでなく、曲率を緩やかに変化させながら一部円弧状にくびれた没入ゾーンをつくりだし、利用者を「窓」の中にいざない、インタラクティブな体験へ導く効果を期待しています。LEDディスプレイはオーロラのように揺らぎながら、異なる時間性や空間性を曖昧につなぎこむ、2Dとも3Dともとれるような高次元の媒体となることを意図しています。

 

空間全体は無彩色のモルタル系で統一し、あえてニュートラルな質感・素材感で統一することで、都市の延長としての匿名性を保ちつつ、LEDディスプレイに浮かび上がる多様な日本各地の風景、色彩、匂い、といった知覚的な要素をより際立てるようにしています。

 

POSTUDIOでは、これまで日本郵政グループが扱ってきたモノや情報の共有を超え、場所や体験の共有を試みました。日本のどこかで流れる時間に、この場の時間がそっと重なるとき、静かな波紋のような共振が生まれる。モノや情報だけでなく、そのような感覚の共振を媒介する場となることを意図しています。

NOIZ recently completed POSTUDIO, an experiential space and café developed by Japan Post Group, located on the first floor of NEWoMan Takanawa at Takanawa Gateway City. The nationwide network of Japan Post Group has long functioned as an infrastructure connecting goods and information through physical locations distributed across the country. Building on these functions, POSTUDIO was conceived to be a new platform for uncovering and sharing lesser-known attractions of regions throughout Japan, while enabling visitors to engage with these places in a more active and immersive manner.

 

NOIZ primarily designed the space with linear elements, contrasted by gently undulating curved surfaces applied to select vertical planes, including walls and the expansive LED displays. These subtle spatial fluctuations softly connect the café area and the experiential zone—two distinct programs—bridging places and people, time and memory, and expressing the inherent media-like quality of the space through architectural form. At the heart of the experiential zone, NOIZ designed a large LED display that extends horizontally beyond conventional proportions, forming a transgressive plane where “here” and “there” intersect. Functioning as a “window” that projects landscapes and everyday life from distant regions, the surface also subtly shifts in curvature to create a narrowed immersive zone, guiding visitors into the window itself and encouraging interactive engagement. Shimmering like an aurora, NOIZ intended the LED display to become a high-dimensional medium—neither purely two-dimensional nor fully three- dimensional—that ambiguously connects different temporalities and spatialities. The entire space is unified by neutral, monochromatic mortar-based finishes. By maintaining an anonymous, urban-like materiality, our design amplifies the sensory presence of the diverse landscapes, colors, and even imagined atmospheres emerging from the LED displays.

 

Moving beyond the sharing of goods and information that has traditionally defined the Japan Post Group’s role, NOIZ conceived this project as a medium that facilitates not only the exchange of information but also the resonance of human perception itself. POSTUDIO, as a design project, explores the sharing of places and experiences. When time flowing somewhere in Japan gently overlaps with time in this space, a quiet resonance—like ripples spreading across water—emerges.

Project Name

POSTUDIO

Information

  • Year

    2025

  • Category

    Design Category, Building Type, Design Status, Interior, Commercial, Realized

  • Status

    Built

  • Location

    東京, 日本 Tokyo, Japan

  • Photo Credit

    高木康広 Yasuhiro Takagi

  • Collaborator

    企画: 日本郵政グループ

    設計: 日本郵政建築

    施工: 乃村工藝社

    Project Planning: Japan Post Group

    Designer: Japan Post Architecture and Engineering Co., Ltd.

    Construction: NOMURA Co., Ltd.

View Detail